trending_down
950 000 €
(2 968,75 €/m²)
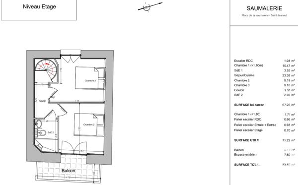
Maison
• 6 pièces
• 320 m²
| query_stats | -44% | par rapport au prix moyen dans la zone |
| savings | 3.39% | de rentabilité brute |
| place | Saint-Jeannet | |
| event |
Le 25 janvier 2024
Modifié le 28 janvier |
|