6 maisons avec terrasse à vendre à Marseille 10e Arrondissement - Pont de Vivaux

sort
Maison close
Quartier Pont de Vivaux close
Terrasse close
Variation de prix
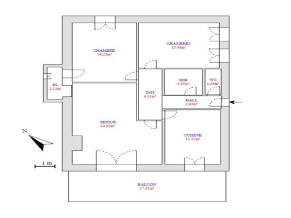
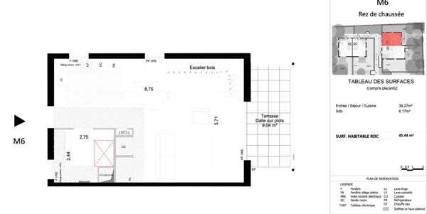
Maison à vendre    3 pièces • 74 m2 Marseille 10
Maison à vendre    3 pièces • 74 m2 Marseille 10
Maison à vendre    3 pièces • 74 m2 Marseille 10
Maison à vendre    3 pièces • 74 m2 Marseille 10
Maison à vendre    3 pièces • 74 m2 Marseille 10
Maison à vendre    3 pièces • 74 m2 Marseille 10
Maison à vendre    3 pièces • 74 m2 Marseille 10
Maison à vendre    3 pièces • 74 m2 Marseille 10
Maison à vendre    3 pièces • 74 m2 Marseille 10
trending_down 286 000 €
(3 864,86 €/m²)
Maison • 3 pièces • 74 m²
query_stats -1% par rapport au prix moyen dans la zone
savings 4.99% de rentabilité brute
place Marseille 10e Arrondissement, Pont de Vivaux
event Le 8 octobre 2025
Modifié le 7 janvier