995 000 €
(4 522,73 €/m²)
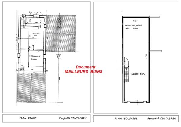
Maison
• 7 pièces
• 220 m²
| query_stats | -12% | par rapport au prix moyen dans la zone |
| savings | 4.50% | de rentabilité brute |
| place | Ventabren | |
| event |
Le 23 janvier
Modifié aujourd'hui |
|