trending_down
172 000 €
(2 761,28 €/m²)
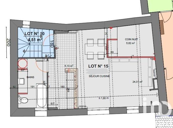
Appartement
• 2 pièces
• 62 m²
| query_stats | +9% | par rapport au prix moyen dans la zone |
| savings | 5.36% | de rentabilité brute |
| place | Nyons | |
| event |
Le 29 juillet
Modifié le 12 novembre |
|