Prix au m²
4 573 €
Entre 3 628 € et 5 242 €

query_statsStatistiques

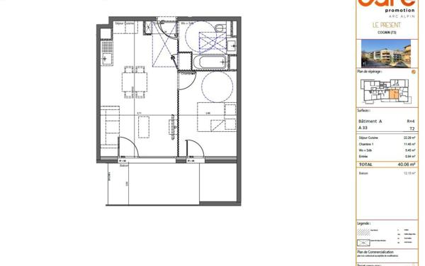
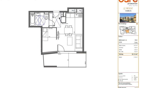
4 studios ou 2 pièces à vendre à Cognin

sort
Appartement close
1 pièce close
2 pièces close

Affinez votre recherche

À voir aussi dans la ville de Cognin