trending_down
153 360 €
(3 834 €/m²)
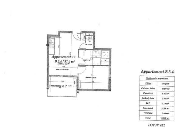
Appartement
• 2 pièces
• 40 m²
| query_stats | +3% | par rapport au prix moyen dans la zone |
| savings | 5.78% | de rentabilité brute |
| place | Remire-Montjoly | |
| event |
Le 13 janvier
Modifié le 29 avril |
|