74 500 €
(1 693,18 €/m²)
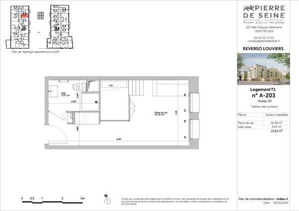
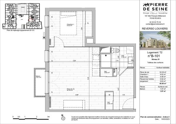
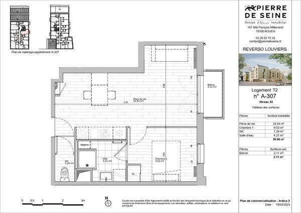
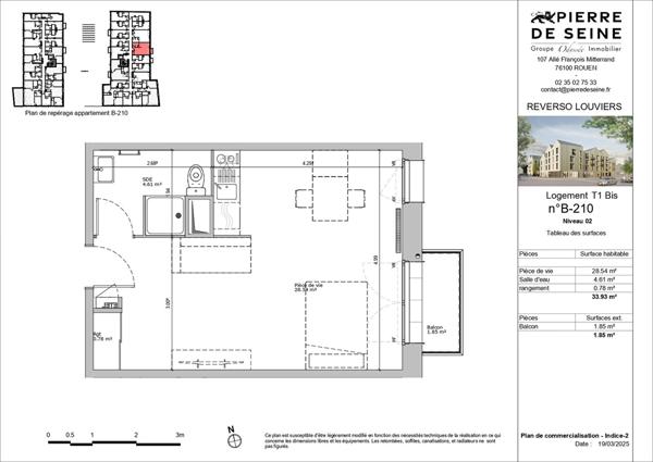
Appartement
• 2 pièces
• 44 m²
| query_stats | -11% | par rapport au prix moyen dans la zone |
| savings | 8.47% | de rentabilité brute |
| place | Louviers | |
| event |
Le 19 novembre
Modifié le 20 novembre |
|