Prix au m²
82 €
Entre 48 € et 83 €

query_statsStatistiques

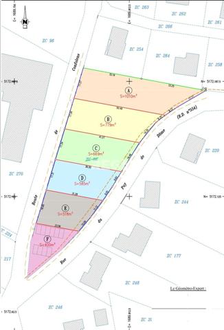
5 terrains à vendre à Olby

sort
Terrain close

Affinez votre recherche

À voir aussi dans la ville de Olby