trending_down
210 000 €
(323,08 €/m²)
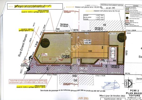
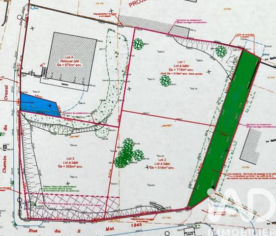
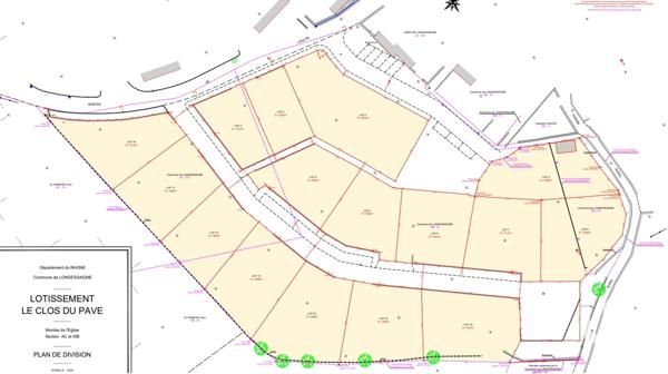
Terrain
• 650 m²
| query_stats | -15% | par rapport au prix moyen dans la zone |
| place | Francheville | |
| event |
Le 28 juin
Modifié hier |
|