Prix au m²
136 €
Entre 17 € et 173 €

query_statsStatistiques

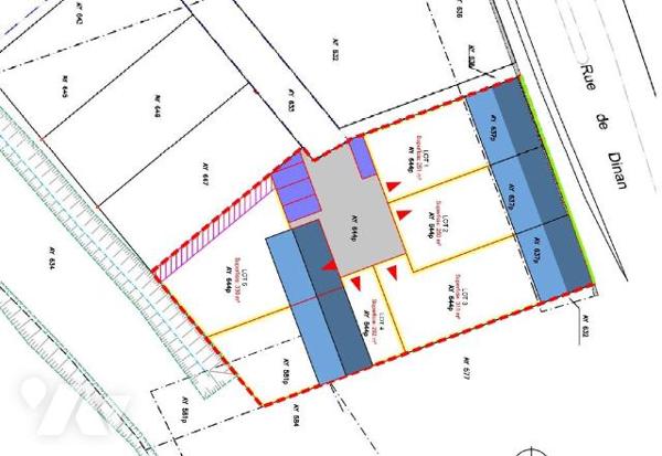
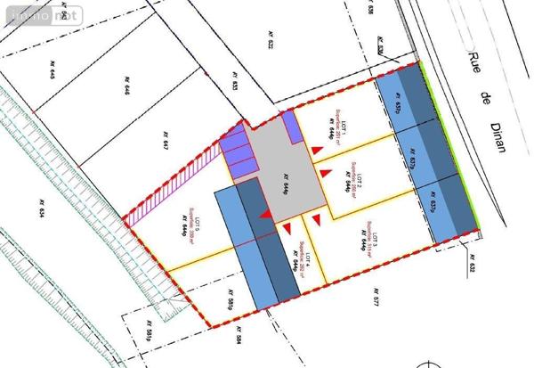
29 terrains à vendre à Dol-de-Bretagne

sort
Terrain close

Affinez votre recherche

À voir aussi dans la ville de Dol-de-Bretagne