97 000 €
(71,69 €/m²)
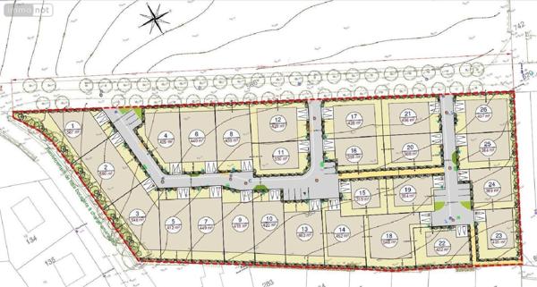
Terrain
• 1353 m²
| place | Javené | |
| event | Le 21 novembre | |