trending_down
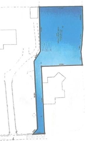
364 000 €
(453,3 €/m²)
Terrain
• 803 m²
| query_stats | +7% | par rapport au prix moyen dans la zone |
| place | Locmariaquer | |
| event |
Le 10 août 2025
Modifié le 12 mars |
|