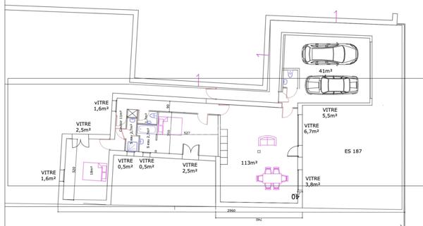
2 terrains à vendre à Bouray-sur-Juine

sort
Terrain close