697 terrains à vendre dans le 14 - Calvados

sort
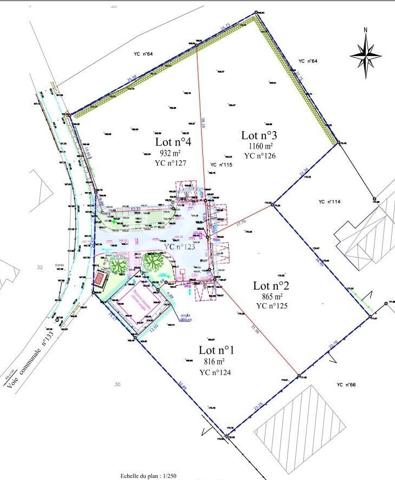
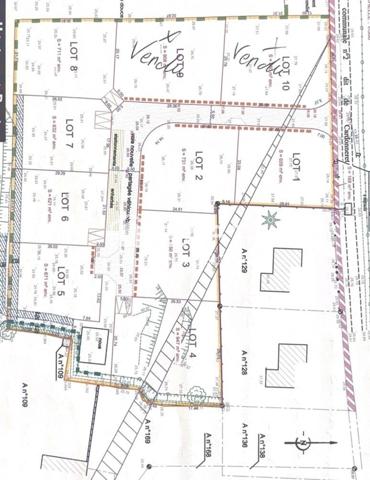
Terrain close
  • 1
  • 2
  • 3
  • 4
  • ...
  • 12
  • >

À voir aussi dans le département Calvados