trending_down
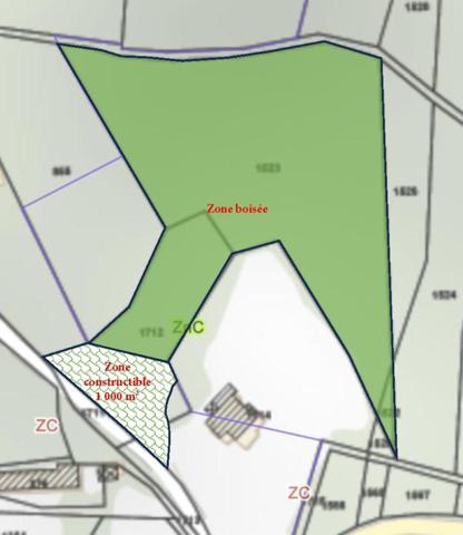
34 000 €
(52,31 €/m²)
Terrain
• 650 m²
| query_stats | -19% | par rapport au prix moyen dans la zone |
| place | Ruelle-sur-Touvre | |
| event |
Le 15 février
Modifié aujourd'hui |
|