Prix au m²
282 €
Entre 179 € et 390 €

query_statsStatistiques

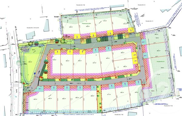
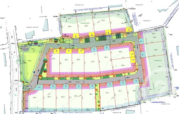
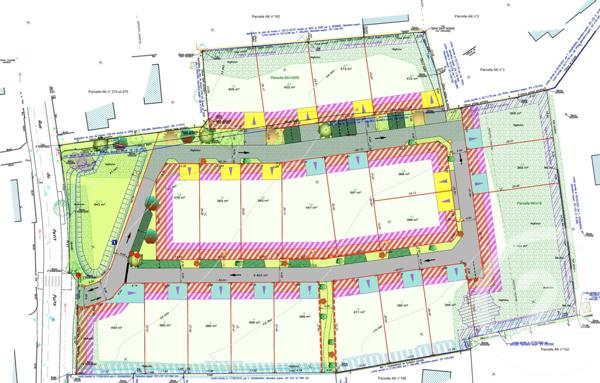
34 terrains à vendre à Le Fenouiller

sort
Terrain close

Affinez votre recherche

À voir aussi dans la ville de Le Fenouiller