Prix au m²
397 €
Entre 353 € et 446 €

query_statsStatistiques

5 terrains à vendre à Mallemort

sort
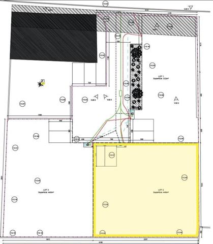
Terrain close

Affinez votre recherche

À voir aussi dans la ville de Mallemort