trending_down
485 000 €
(970 €/m²)
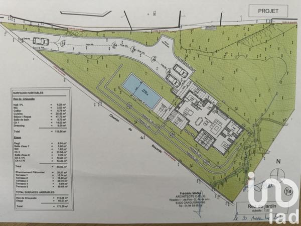
Terrain
• 500 m²
| query_stats | +11% | par rapport au prix moyen dans la zone |
| place | Carqueiranne | |
| event |
Le 24 octobre
Modifié le 5 décembre |
|