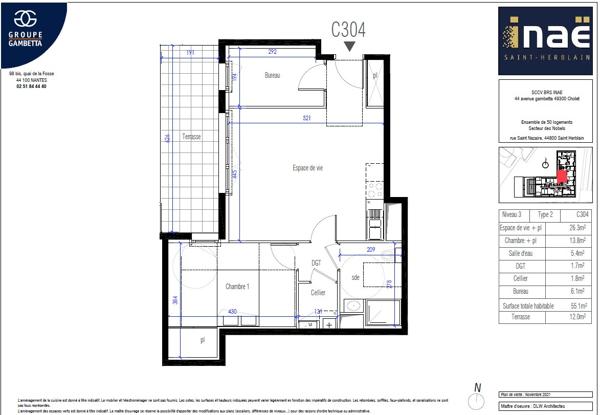
167 990 €
(3 054,36 €/m²)
Appartement
• 2 pièces
• 55 m²
| query_stats | -3% | par rapport au prix moyen dans la zone |
| savings | 5.27% | de rentabilité brute |
| place | Saint-Herblain | |
| event | Aujourd'hui | |