33 biens immobiliers à vendre à Versailles - Clagny Glatigny

sort
Quartier Clagny Glatigny close
Variation de prix
Appartement Versailles
Appartement Versailles
Appartement Versailles
Appartement Versailles
Appartement Versailles
Appartement Versailles
Appartement Versailles
Appartement Versailles
Appartement Versailles
Appartement Versailles
Appartement Versailles
Appartement Versailles
Appartement Versailles
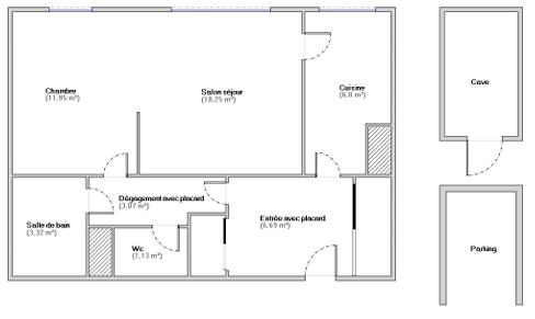
trending_down 310 000 €
(6 078,43 €/m²)
Appartement • 2 pièces • 51 m²
query_stats -12% par rapport au prix moyen dans la zone
savings 5.11% de rentabilité brute
place Versailles, Clagny Glatigny
event Le 16 juin 2025
Modifié le 3 août 2025