1 045 €/mois
(23,43 €/m²)
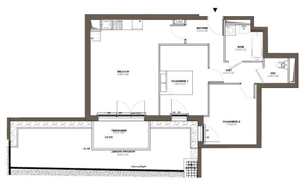
Appartement
• 2 pièces
• 45 m²
| place | Aubervilliers | |
| event |
Le 28 avril
Modifié le 30 avril |
|