60 appartements à louer dans le 58 - Nièvre

sort
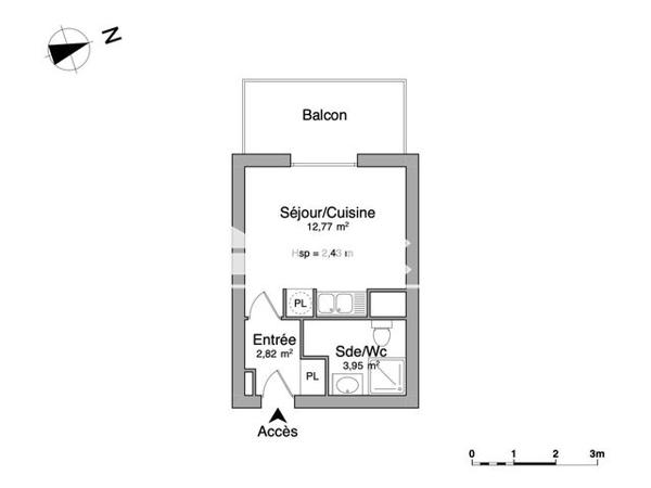
Appartement close
  • 1
  • 2
  • >

Affinez votre recherche

À voir aussi dans le département Nièvre