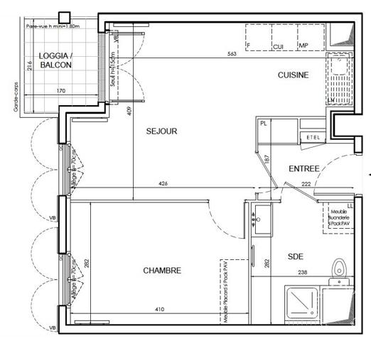
830 €/mois
(21,67 €/m²)
Appartement
• 2 pièces
• 38 m²
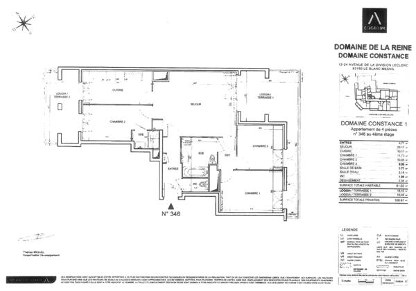
| place | Le Blanc-Mesnil | |
| event |
Hier
Modifié aujourd'hui |
|