Prix au m²
15 €
Entre 9 € et 21 €

query_statsStatistiques

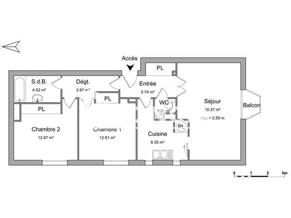
15 appartements à louer à Poitiers - Montbernage - Pont Neuf

sort
Appartement close
Quartier Montbernage - Pont Neuf close

Affinez votre recherche

À voir aussi dans la ville de Poitiers