trending_down
465 €/mois
(10,07 €/m²)
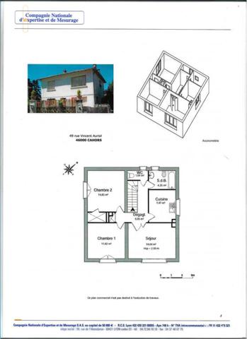
Appartement
• 2 pièces
• 46 m²
| place | Cahors, Centre-ville | |
| event |
Le 19 juillet 2025
Modifié hier |
|