Prix au m²
17 €
Entre 17 € et 17 €

query_statsStatistiques

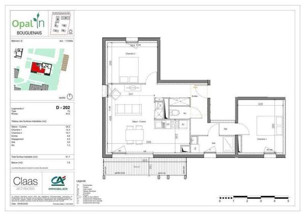
1 appartement à louer à Bouguenais - Le Bourg

sort
Appartement close
Quartier Le Bourg close