trending_up
609,4 €/mois
(24,67 €/m²)
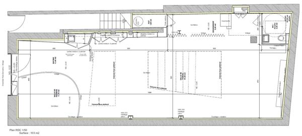
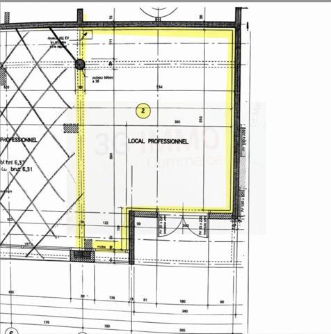
Local commercial
• 1 pièce
• 25 m²
| place | Bruges, Ausone - La Hutte - Le Grand Darnal | |
| event |
Le 22 juillet 2025
Modifié hier |
|