trending_up
960 €/mois
(13,71 €/m²)
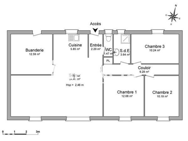
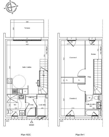
Maison
• 3 pièces
• 70 m²
| place | Libourne, Centre-ville - Bastide - Gare | |
| event |
Le 16 février
Modifié hier |
|