trending_down
790 €/mois
(14,91 €/m²)
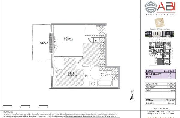
Appartement
• 3 pièces
• 53 m²
| place | Talant, Centre-ville | |
| event |
Le 17 février
Modifié aujourd'hui |
|