Prix au m²
3 640 €
Entre 2 903 € et 3 914 €

query_statsStatistiques

5 appartements de 3 pièces ou plus à vendre à Ugine

sort
Appartement close
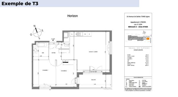
3 pièces close
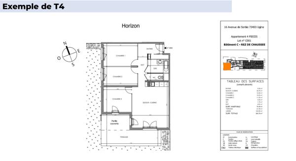
4 pièces close
5+ pièce close

Affinez votre recherche

À voir aussi dans la ville de Ugine