trending_down
183 850 €
(3 064,17 €/m²)
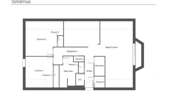
Appartement
• 3 pièces
• 60 m²
| query_stats | +48% | par rapport au prix moyen dans la zone |
| place | Quettehou | |
| event |
Le 7 mars 2025
Modifié le 17 octobre 2025 |
|