trending_down
105 000 €
(1 368,26 €/m²)
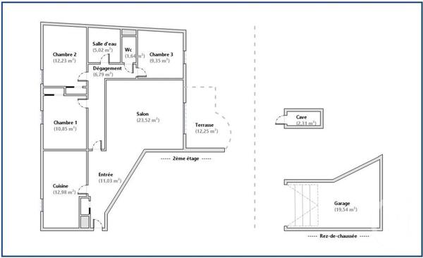
Appartement
• 3 pièces
• 77 m²
| query_stats | -17% | par rapport au prix moyen dans la zone |
| savings | 7.59% | de rentabilité brute |
| place | Bourg-de-Péage | |
| event |
Le 24 septembre
Modifié le 16 décembre |
|