trending_down
329 000 €
(3 494,42 €/m²)
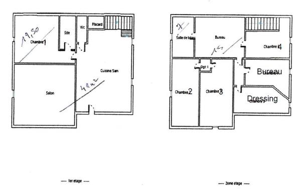
Appartement
• 4 pièces
• 94 m²
| query_stats | +8% | par rapport au prix moyen dans la zone |
| savings | 3.67% | de rentabilité brute |
| place | Anse | |
| event |
Le 9 septembre
Modifié le 13 décembre |
|