trending_down
190 000 €
(3 345,07 €/m²)
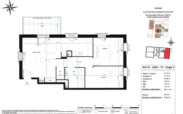
Appartement
• 3 pièces
• 57 m²
| query_stats | -1% | par rapport au prix moyen dans la zone |
| savings | 4.54% | de rentabilité brute |
| place | Fontaines-sur-Saône | |
| event |
Le 5 avril
Modifié le 6 mai |
|