trending_down
615 000 €
(29 285,71 €/m²)
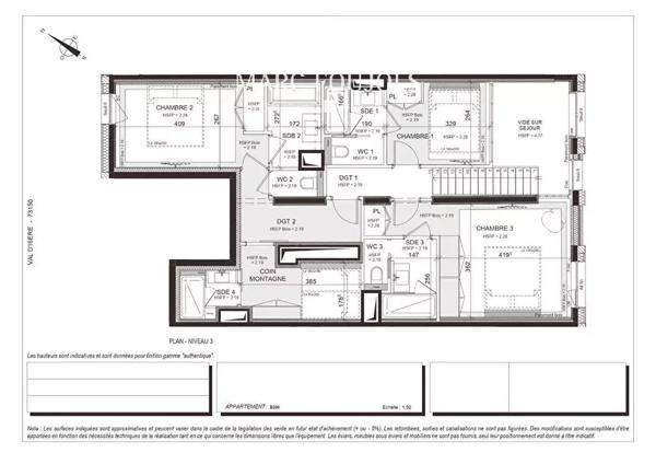
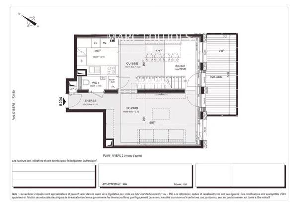
Appartement
• 1 pièce
• 21 m²
| query_stats | +146% | par rapport au prix moyen dans la zone |
| place | Val-d'Isère | |
| event |
Le 25 juillet
Modifié le 9 novembre |
|