trending_down
170 000 €
(2 982,46 €/m²)
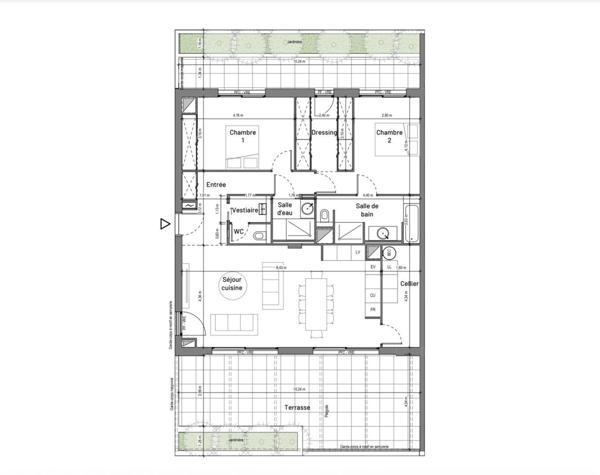
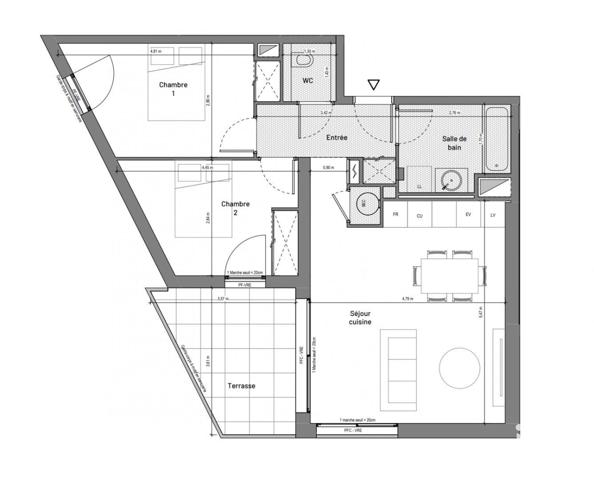
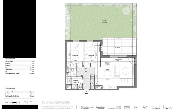
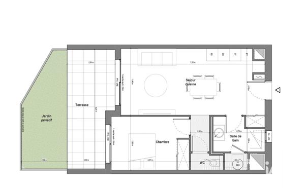
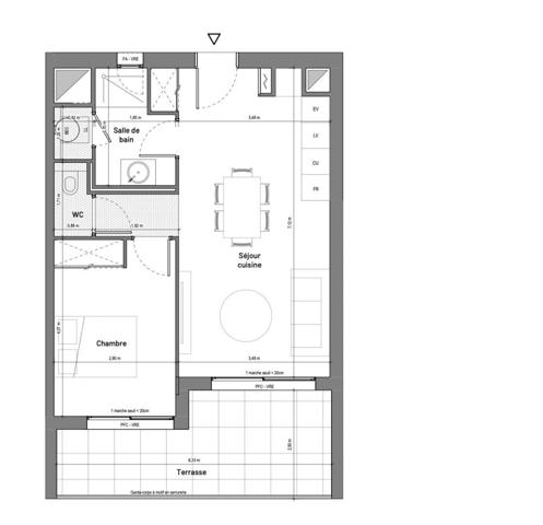
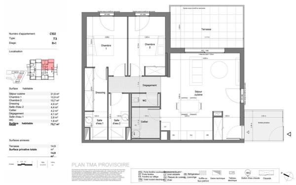
Appartement
• 3 pièces
• 57 m²
| query_stats | -13% | par rapport au prix moyen dans la zone |
| savings | 4.08% | de rentabilité brute |
| place | Uzès | |
| event |
Le 24 mai 2024
Modifié le 1er novembre |
|