142 000 €
(3 314,66 €/m²)
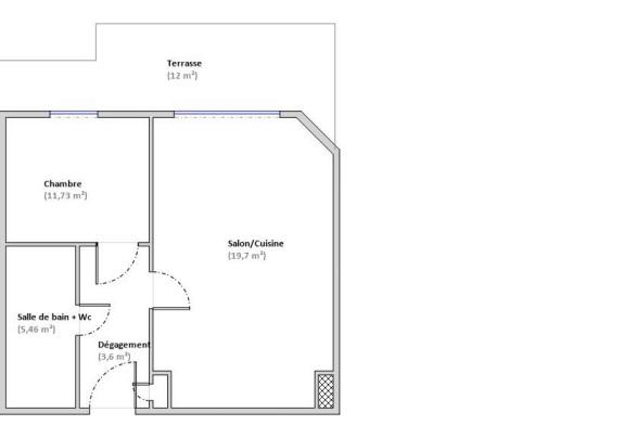
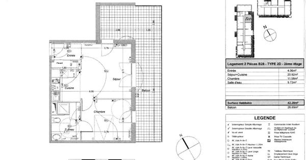
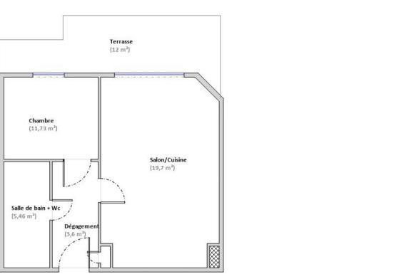
Appartement
• 2 pièces
• 43 m²
| query_stats | -2% | par rapport au prix moyen dans la zone |
| savings | 5.62% | de rentabilité brute |
| place | Juvignac | |
| event |
Le 12 septembre 2025
Modifié le 20 avril |
|