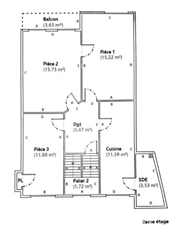
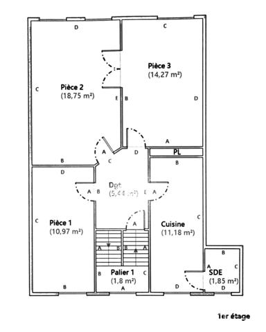
2 immeubles à vendre à Reichshoffen

sort
Immeuble close