trending_down
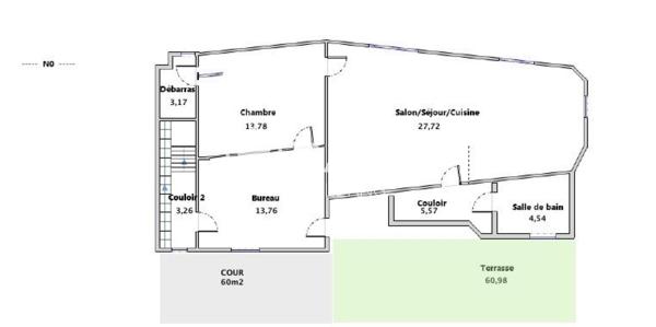
520 000 €
(2 260,87 €/m²)
Immeuble
• 230 m²
| query_stats | -49% | par rapport au prix moyen dans la zone |
| place | Montreuil | |
| event |
Le 20 octobre
Modifié le 30 novembre |
|