288 750 €
(2 724,06 €/m²)
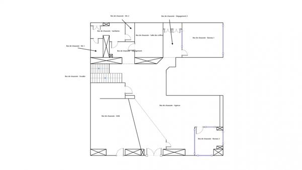
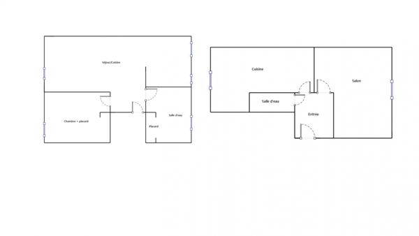
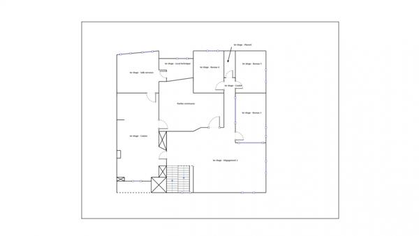
Immeuble
• 106 m²
| query_stats | -12% | par rapport au prix moyen dans la zone |
| place | Marseille 9e Arrondissement, Le Cabot | |
| event | Le 11 novembre 2025 | |