Prix au m²
835 €
Entre 692 € et 978 €

query_statsStatistiques

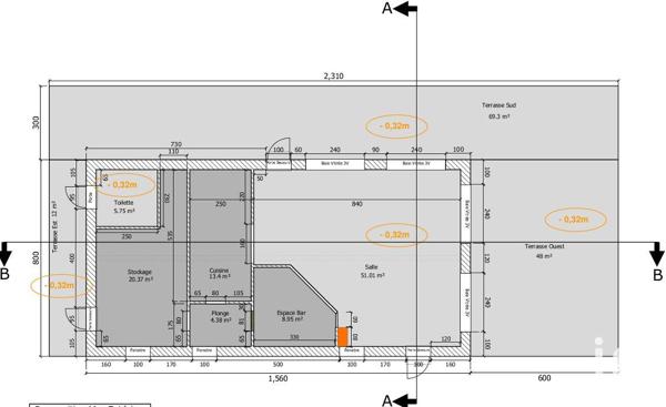
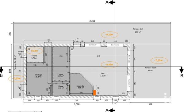
2 locaux commerciaux à vendre à Florimont-Gaumier

sort
Local commercial close