trending_down
399 000 €
(3 990 €/m²)
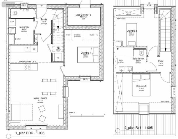
Maison
• 6 pièces
• 100 m²
query_stats | -2% | par rapport au prix moyen dans la zone |
place | Wimereux | |
event |
Le 19 juillet
Modifié aujourd'hui |