899 000 €
(8 172,73 €/m²)
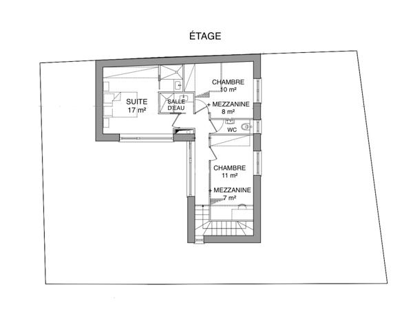
Maison
• 5 pièces
• 110 m²
| query_stats | +13% | par rapport au prix moyen dans la zone |
| savings | 3.43% | de rentabilité brute |
| place | Clamart, Gare | |
| event |
Le 1er octobre
Modifié hier |
|