trending_down
350 000 €
(3 465,35 €/m²)
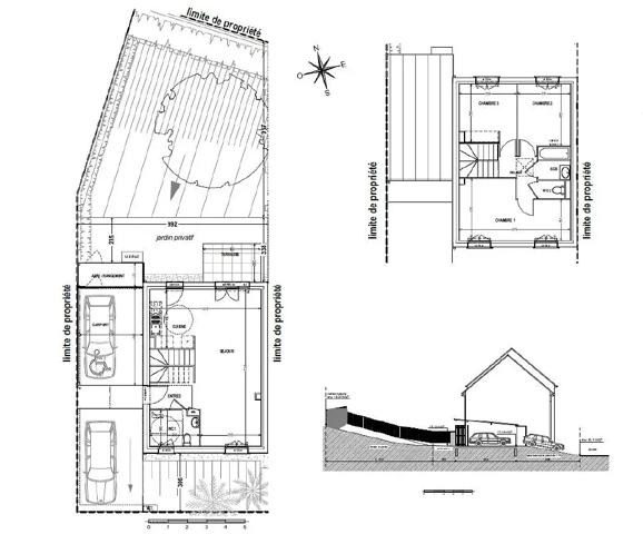
Maison
• 6 pièces
• 101 m²
| query_stats | -5% | par rapport au prix moyen dans la zone |
| place | Dives-sur-Mer | |
| event |
Le 4 novembre
Modifié aujourd'hui |
|