trending_down
280 000 €
(1 931,03 €/m²)
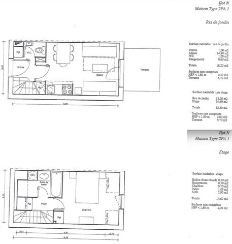
Maison
• 6 pièces
• 145 m²
| query_stats | -30% | par rapport au prix moyen dans la zone |
| place | Port-en-Bessin-Huppain | |
| event |
Le 20 septembre
Modifié le 20 octobre |
|