trending_down
389 000 €
(3 657,39 €/m²)
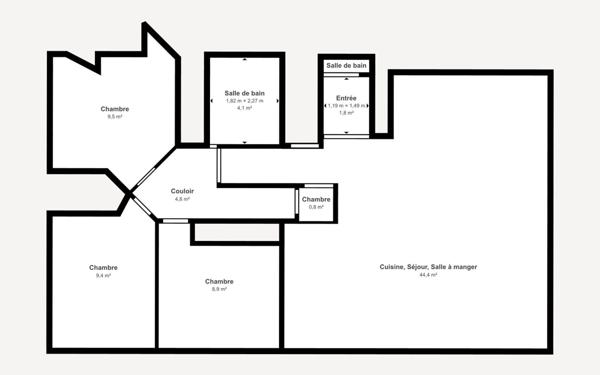
Maison
• 5 pièces
• 106 m²
| query_stats | +79% | par rapport au prix moyen dans la zone |
| place | Onet-le-Château | |
| event |
Le 7 novembre
Modifié le 5 décembre |
|