trending_down
517 000 €
(2 611,11 €/m²)
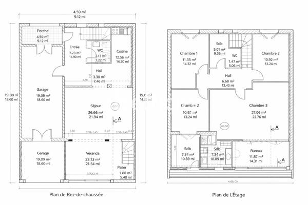
Maison
• 5 pièces
• 198 m²
| query_stats | -25% | par rapport au prix moyen dans la zone |
| savings | 5.81% | de rentabilité brute |
| place | Juvignac | |
| event |
Le 1er octobre 2025
Modifié hier |
|