545 900 €
(2 322,98 €/m²)
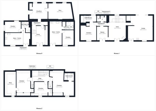
Maison
• 8 pièces
• 235 m²
| query_stats | -16% | par rapport au prix moyen dans la zone |
| place | Clisson | |
| event | Aujourd'hui | |