trending_down
1 625 000 €
(8 913,88 €/m²)
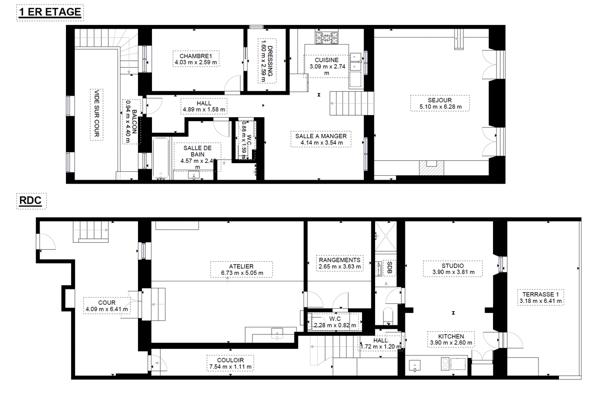
Maison
• 5 pièces
• 182 m²
| query_stats | +17% | par rapport au prix moyen dans la zone |
| place | Marseille 7e Arrondissement | |
| event |
Le 20 septembre 2025
Modifié le 3 février |
|