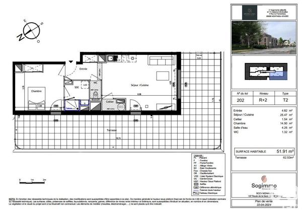
210 000 €
(4 117,65 €/m²)
Appartement
• 2 pièces
• 51 m²
| place | La Boissière-de-Montaigu | |
| event | Le 7 octobre | |